振動螺旋提升機是粉末類物料輸送的常用設備,根據輸送形式,可分為垂直式螺旋提升機、傾斜式螺旋提升機和u型螺旋提升機,鄭州杰凱專業的不銹鋼螺旋提升機生產廠家,規格型號齊全,設計合理,故障率低,源頭廠家,擅長定制,可根據用戶受料設備的尺寸進行個性化定制,免費設計,免費出圖,價格優惠,竭誠歡迎新老朋友來我司考察指導。

一、工作原理:
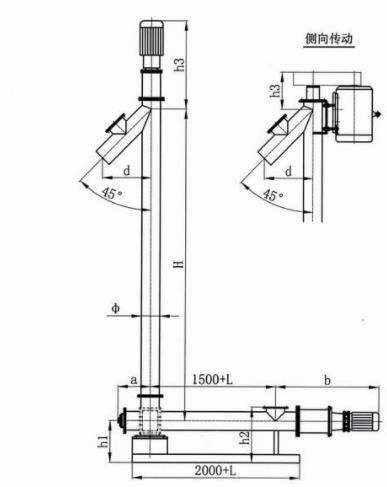
振動螺旋提升機是通過減速機帶動螺旋軸的轉動,螺旋軸上的螺旋葉片轉動帶動物料,將物料輸送到一定的水平距離和水平高度,在工業生產中得到較為廣泛的應用。
二、主要技術參數:
1、上料速度:1-3T/H(可定制)
2、料箱容積:110升(可定制)
3、振動螺旋提升機電源:三相380V50Hz(可定制220V)
4、整機功率:驅動電機1.1KW振動電機150W
5、整機重量:110Kg
6、上料高度:1600mm(可定制)
7、儲料倉外形尺寸:800×800mm(可定制圓斗上料機)
三、性能特點:

1、振動螺旋提升機的開關設計為正反轉控制,可以方便清除料管內的殘余粉末物料;
2、在料管的下端設計有放料門,在清料的時候,打開放料門,電機反轉,即可完成粉末清料;
3、采用卡箍固定螺桿端座,方便在拆卸時螺旋整條抽出,方便清洗;
4、可加裝傳感器及智能控制電路,進行料位控制實現自動粉末給料功能或過載報警等功能;
5、在儲料倉上安裝有振動電機,可以有效解決物料搭架現象;
6、具有輸送效率高,工作安全可靠,結構簡單,功能完備;
7、垂直式螺旋提升機密封性好、噪音小、外形美觀等特點;
產品綜述:

1、垂直式螺旋提升機可根據用戶輸送物料的特性,選擇相應材質,201不銹鋼螺旋提升機適用于無腐蝕性物料、304不銹鋼螺旋提升機適用于有一定腐蝕性和食品類有一定衛生要求輸送的場合、316u型螺旋提升機適用于有較強腐蝕性的物料輸送;
2、u型螺旋提升機可以選擇定制114mm133mm159mm219mm273mm及其他要求等不同管徑,不同的輸送管徑,對應不同的輸送量,用戶定制螺旋提升機時,需告知輸送的物料及輸送量,方便廠家選擇不同的輸送管徑設計。
3、鄭州杰凱廠家設計有自動供料系統,根據輸送形式不同,控制系統和方式有所差異,常規單點輸送,簡單的控制系統既可滿足要求,多點供料,需要配置Plc控制系統,實現上料過程的的自動化;
4、源頭廠家生產、直銷,可根據用戶要求定制不同要求的螺旋提升機,
5、常規成品廠家批量化生產,定制螺旋上料機因僅需變換輸送高度等參數,自然價格優惠。
6、整機設計合理,在運行過程中,噪音較小,平穩度較高,輸送速度快,可與有效提高工作效率,降低勞動強度




客服1